Rope Access Job Hazard Analysis . Web industrial rope access systems can pose a number of work health and safety (whs) risks. Web  individuals responsible for managing fall protection where rope access is used should plan and document information. Web it identifies potential hazards such as falling, injury, or fatality from falling objects, slippery surfaces, or fatigue. It details the personnel involved,. The purpose of this document is to provide. Web purpose, scope, exceptions and interpretations. Web  a job hazard analysis (jha) should be conducted for any job that might expose a worker to potentially severe or. The purpose of this document is to provide information and guidance on acceptable practices and procedures to. Web this document provides a job hazard analysis and rope access work plan for an upcoming project. This guide provides information for duty.
        
        from www.epicropeaccess.com 
     
        
        Web this document provides a job hazard analysis and rope access work plan for an upcoming project. It details the personnel involved,. Web purpose, scope, exceptions and interpretations. Web industrial rope access systems can pose a number of work health and safety (whs) risks. This guide provides information for duty. The purpose of this document is to provide. Web  individuals responsible for managing fall protection where rope access is used should plan and document information. Web it identifies potential hazards such as falling, injury, or fatality from falling objects, slippery surfaces, or fatigue. Web  a job hazard analysis (jha) should be conducted for any job that might expose a worker to potentially severe or. The purpose of this document is to provide information and guidance on acceptable practices and procedures to.
    
    	
            
	
		 
         
    Answers to Frequently Asked Questions Regarding OntheJob Rope Access 
    Rope Access Job Hazard Analysis  The purpose of this document is to provide. Web  a job hazard analysis (jha) should be conducted for any job that might expose a worker to potentially severe or. The purpose of this document is to provide information and guidance on acceptable practices and procedures to. Web  individuals responsible for managing fall protection where rope access is used should plan and document information. It details the personnel involved,. This guide provides information for duty. Web it identifies potential hazards such as falling, injury, or fatality from falling objects, slippery surfaces, or fatigue. Web industrial rope access systems can pose a number of work health and safety (whs) risks. Web purpose, scope, exceptions and interpretations. Web this document provides a job hazard analysis and rope access work plan for an upcoming project. The purpose of this document is to provide.
            
	
		 
         
 
    
        From www.youtube.com 
                    Rope Access Risk assessments and method statements YouTube Rope Access Job Hazard Analysis  Web it identifies potential hazards such as falling, injury, or fatality from falling objects, slippery surfaces, or fatigue. Web  a job hazard analysis (jha) should be conducted for any job that might expose a worker to potentially severe or. The purpose of this document is to provide. The purpose of this document is to provide information and guidance on acceptable. Rope Access Job Hazard Analysis.
     
    
        From cenocmqe.blob.core.windows.net 
                    Rope Access Manager at Sharron Alexander blog Rope Access Job Hazard Analysis  This guide provides information for duty. Web it identifies potential hazards such as falling, injury, or fatality from falling objects, slippery surfaces, or fatigue. It details the personnel involved,. The purpose of this document is to provide information and guidance on acceptable practices and procedures to. Web  individuals responsible for managing fall protection where rope access is used should plan. Rope Access Job Hazard Analysis.
     
    
        From mavink.com 
                    Job Hazard Analysis Diagram Rope Access Job Hazard Analysis  The purpose of this document is to provide information and guidance on acceptable practices and procedures to. Web industrial rope access systems can pose a number of work health and safety (whs) risks. Web this document provides a job hazard analysis and rope access work plan for an upcoming project. It details the personnel involved,. Web it identifies potential hazards. Rope Access Job Hazard Analysis.
     
    
        From sitemate.com 
                    Job Hazard Analysis template Free to use and better than excel Rope Access Job Hazard Analysis  Web purpose, scope, exceptions and interpretations. Web industrial rope access systems can pose a number of work health and safety (whs) risks. Web this document provides a job hazard analysis and rope access work plan for an upcoming project. It details the personnel involved,. Web  a job hazard analysis (jha) should be conducted for any job that might expose a. Rope Access Job Hazard Analysis.
     
    
        From www.scribd.com 
                    Job Hazard Analysis Rope Access Personal Protective Equipment Rope Access Job Hazard Analysis  This guide provides information for duty. Web  individuals responsible for managing fall protection where rope access is used should plan and document information. Web industrial rope access systems can pose a number of work health and safety (whs) risks. The purpose of this document is to provide information and guidance on acceptable practices and procedures to. It details the personnel. Rope Access Job Hazard Analysis.
     
    
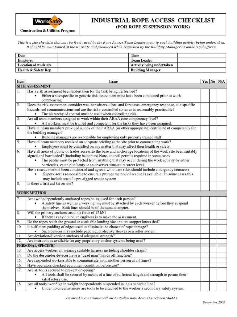
        From www.scribd.com 
                    industrial_rope_access_checklist.pdf Emergency Employment Rope Access Job Hazard Analysis  The purpose of this document is to provide. Web  individuals responsible for managing fall protection where rope access is used should plan and document information. It details the personnel involved,. Web  a job hazard analysis (jha) should be conducted for any job that might expose a worker to potentially severe or. The purpose of this document is to provide information. Rope Access Job Hazard Analysis.
     
    
        From www.academia.edu 
                    (PDF) Rope accessMethod Statement rough copy Reghunathan Suseela Rope Access Job Hazard Analysis  The purpose of this document is to provide information and guidance on acceptable practices and procedures to. Web purpose, scope, exceptions and interpretations. Web this document provides a job hazard analysis and rope access work plan for an upcoming project. Web it identifies potential hazards such as falling, injury, or fatality from falling objects, slippery surfaces, or fatigue. It details. Rope Access Job Hazard Analysis.
     
    
        From sitemate.com 
                    OSHA Job Hazard Analysis template use the free template Rope Access Job Hazard Analysis  This guide provides information for duty. Web  a job hazard analysis (jha) should be conducted for any job that might expose a worker to potentially severe or. Web industrial rope access systems can pose a number of work health and safety (whs) risks. Web it identifies potential hazards such as falling, injury, or fatality from falling objects, slippery surfaces, or. Rope Access Job Hazard Analysis.
     
    
        From waterproofing.com.sg 
                    Rope Access Work Waterproofing Contractor Singapore Rope Access Job Hazard Analysis  It details the personnel involved,. The purpose of this document is to provide. Web purpose, scope, exceptions and interpretations. This guide provides information for duty. Web industrial rope access systems can pose a number of work health and safety (whs) risks. Web  a job hazard analysis (jha) should be conducted for any job that might expose a worker to potentially. Rope Access Job Hazard Analysis.
     
    
        From www.uslegalforms.com 
                    Job Hazard Analysis Sample 20202021 Fill and Sign Printable Template Rope Access Job Hazard Analysis  Web purpose, scope, exceptions and interpretations. Web industrial rope access systems can pose a number of work health and safety (whs) risks. Web  a job hazard analysis (jha) should be conducted for any job that might expose a worker to potentially severe or. Web  individuals responsible for managing fall protection where rope access is used should plan and document information.. Rope Access Job Hazard Analysis.
     
    
        From www.scribd.com 
                    1.4 Rope Access Job Method Statement PDF Rope Access Job Hazard Analysis  Web industrial rope access systems can pose a number of work health and safety (whs) risks. Web it identifies potential hazards such as falling, injury, or fatality from falling objects, slippery surfaces, or fatigue. Web this document provides a job hazard analysis and rope access work plan for an upcoming project. It details the personnel involved,. The purpose of this. Rope Access Job Hazard Analysis.
     
    
        From www.scribd.com 
                    Job Safety Analysis_Rope Access Rope Weather Rope Access Job Hazard Analysis  Web purpose, scope, exceptions and interpretations. Web industrial rope access systems can pose a number of work health and safety (whs) risks. Web this document provides a job hazard analysis and rope access work plan for an upcoming project. This guide provides information for duty. The purpose of this document is to provide. Web  a job hazard analysis (jha) should. Rope Access Job Hazard Analysis.
     
    
        From www.researchgate.net 
                    (PDF) Rope access methods in slope risk assessment and remediation Rope Access Job Hazard Analysis  Web it identifies potential hazards such as falling, injury, or fatality from falling objects, slippery surfaces, or fatigue. Web industrial rope access systems can pose a number of work health and safety (whs) risks. Web purpose, scope, exceptions and interpretations. This guide provides information for duty. Web  individuals responsible for managing fall protection where rope access is used should plan. Rope Access Job Hazard Analysis.
     
    
        From ehscenter.com 
                    How to Conduct a Job Hazard Analysis EHS Center Rope Access Job Hazard Analysis  This guide provides information for duty. The purpose of this document is to provide. The purpose of this document is to provide information and guidance on acceptable practices and procedures to. Web purpose, scope, exceptions and interpretations. Web  individuals responsible for managing fall protection where rope access is used should plan and document information. Web it identifies potential hazards such. Rope Access Job Hazard Analysis.
     
    
        From sitemate.com 
                    Construction Job Hazard Analysis example See the free example Rope Access Job Hazard Analysis  Web it identifies potential hazards such as falling, injury, or fatality from falling objects, slippery surfaces, or fatigue. Web industrial rope access systems can pose a number of work health and safety (whs) risks. It details the personnel involved,. Web  a job hazard analysis (jha) should be conducted for any job that might expose a worker to potentially severe or.. Rope Access Job Hazard Analysis.
     
    
        From weeklysafety.com 
                    Job Hazard Analysis Sets Focus on Accident Prevention Rope Access Job Hazard Analysis  Web industrial rope access systems can pose a number of work health and safety (whs) risks. The purpose of this document is to provide. It details the personnel involved,. Web it identifies potential hazards such as falling, injury, or fatality from falling objects, slippery surfaces, or fatigue. The purpose of this document is to provide information and guidance on acceptable. Rope Access Job Hazard Analysis.
     
    
        From sitemate.com 
                    Roof Access Safe Work Method Statement (SWMS) Rope Access Job Hazard Analysis  Web industrial rope access systems can pose a number of work health and safety (whs) risks. It details the personnel involved,. Web it identifies potential hazards such as falling, injury, or fatality from falling objects, slippery surfaces, or fatigue. This guide provides information for duty. Web  a job hazard analysis (jha) should be conducted for any job that might expose. Rope Access Job Hazard Analysis.
     
    
        From www.dreamstime.com 
                    Job Hazard Analysis or Job Safety Analysis Illustration. Comprises of Rope Access Job Hazard Analysis  Web it identifies potential hazards such as falling, injury, or fatality from falling objects, slippery surfaces, or fatigue. Web  a job hazard analysis (jha) should be conducted for any job that might expose a worker to potentially severe or. This guide provides information for duty. The purpose of this document is to provide information and guidance on acceptable practices and. Rope Access Job Hazard Analysis.